The MBS (MNS) system is a product that introduces Swiss manufacturing technology.
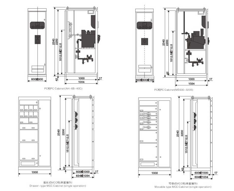
MBS (MNS) series low-voltage switch cabinets include fixed technology and drawer technology. The materials can be selected and divided into steel plate structure and plastic structure. The latter's technical level has reached the international level in the 1980s.
The MBS (MNS) system can meet the needs of various power supply and distribution, and can be widely used in power distribution systems and intelligent operating systems of various industrial and mining enterprises such as land, power stations, nuclear power plants, ships, and oil platforms.
This switchgear has introduced the technology of Swiss ABB and made technical improvements on its original basis to make it more in line with my country's national conditions.
| project | unit | data |
| Overvoltage category | Ⅳ Ⅲ | |
| pollution level | 3 | |
| Rated working voltage (Ue) | V | 380(660) |
| Rated insulation voltage (Ui) | V | 660(1000) |
| Rated frequency | Hz | 50(60) |
| Horizontal bus | ||
| Rated current | A | 5000,4000,3150,2500,2000,1600,1250,1000,800,630 |
| Rated short-time withstand current (effective value 1s) | kA | 50,65,80 |
| Rated peak withstand current (maximum value 0.1s) | kA | 105,140,176 |
| Vertical busbar | ||
| Rated maximum working current | A | ≤1000 |
| Rated short-time withstand current | kA | 50 |
| Rated short-time withstand current | kA | 105 |
| Housing protection level | IP30 IP40 (special instructions) |

Phone
0086-13868724314
Phone