GG-1A(F) fixed indoor AC metal-enclosed switchgear (hereinafter referred to as \"switchgear\") is suitable for receiving and distributing electric energy in three-phase AC single bus and single bus bypass systems with a rated voltage of 3 to 10kV and a rated frequency of 50Hz.
The main switch in the switchgear can be equipped with ZN28(A) series vacuum circuit breaker according to user needs.

| project | unit | data |
| Rated voltage | V | 3.6、7.2、12 |
| Rated current | A | 630-3150 |
| Rated short circuit breaking current | kA | 20、25、31.5、40 |
| Rated short-time withstand current | kA | 20、25、31.5、40 |
| Rated peak withstand current | kA | 50、63、80、100 |
| Rated short circuit making current | kA | 50、63、80、100 |
| Rated short circuit duration | s | 4 |
| busbar system | Single busbar or single busbar with bypass system | |
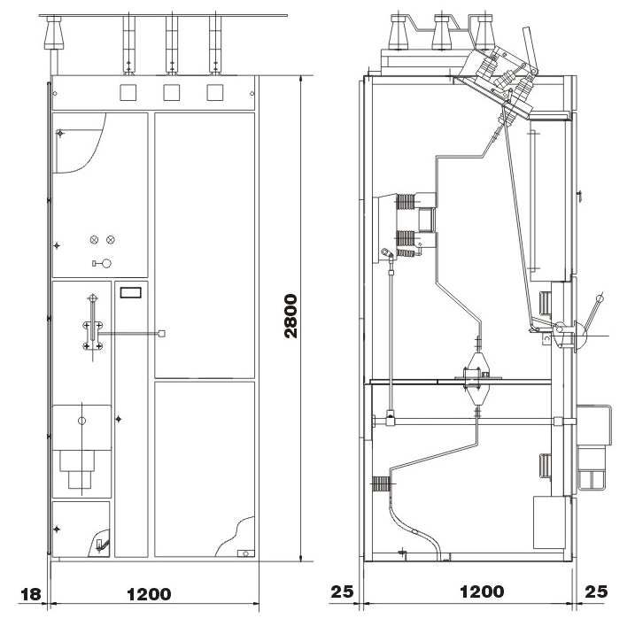
| Overall dimensions (width W × depth L × height H) | mm | 1200×1200(1800)×2800 |

Phone
0086-13868724314
Phone